Porzione di trifamiliare in vendita

Bologna, Via Giovanni Segantini - Santa Viola
€ 410.000
6 locali 6 locali
160 Mq 160 Mq
2 bagni 2 bagni

Porzione di trifamiliare in vendita

Bologna, Via Giovanni Segantini - Santa Viola

Descrizione annuncio

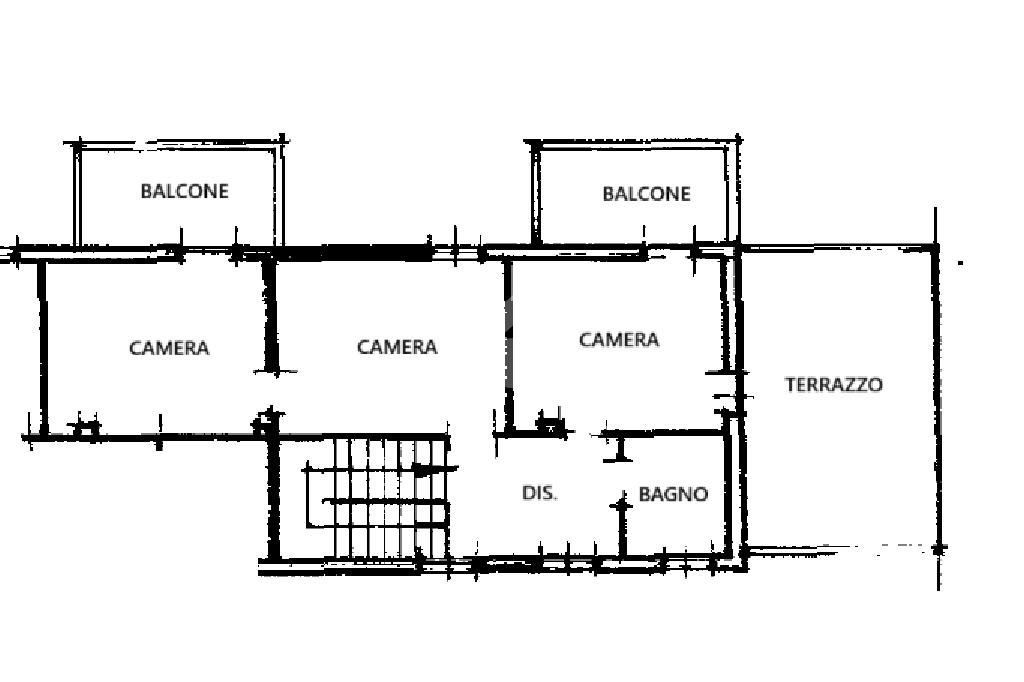
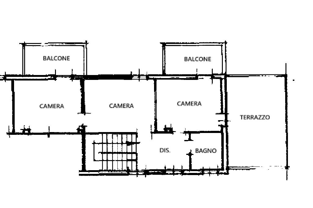
NUDA PROPRIETA': Nel cuore di Santa Viola, a Bologna, è disponibile una porzione di trifamiliare in vendita, ideale per chi cerca una soluzione abitativa spaziosa e confortevole. L'immobile, costruito nel 1980, si estende su 160 mq distribuiti su due livelli, offrendo ampi spazi per ogni esigenza.

Al piano terra, si accede ad una luminosa sala che si apre su un giardino privato, perfetto per momenti di relax all'aperto. La cucina, separata e funzionale, è ideale per chi ama cucinare e ricevere ospiti. Il piano terra si completa con uno studio ed un bagno.

Al piano superiore, si trovano tre camere da letto,un bagno ed un terrazzo, garantendo spazio e privacy per tutta la famiglia.

Questa soluzione signorile rappresenta un'opportunità unica per chi desidera vivere in una zona tranquilla ma ben collegata al centro di Bologna.

Per ulteriori informazioni e dettagli siamo disponibili dalle 09:00 alle 13:00 e dalle 15:00 alle 19:30 presso la nostra sede in Via Emilia n°88/A - Angolo Via Battindarno. Per fissare una visita all'immobile ci contatti allo 051/4984817.

Mostra tutto

Nelle vicinanze

Trasporto pubblico Trasporto pubblico
Lazzaretto
Lazzaretto
2,0 Km
Casteldebole
Casteldebole
2,2 Km
Battindarno Segantini
Battindarno Segantini
150 m
Togliatti
Togliatti
240 m
stazione di Bologna Borgo Panigale
stazione di Bologna Borgo Panigale
1,9 Km
Ricariche auto elettriche Ricariche auto elettriche
Cimitero Monumentale di Bologna | EnelX
740 m
Bologna Ospedale Maggiore | EnelX
870 m
BOLOGNA Cimabue | ENELX
940 m
Bologna Andrea Costa | EnelX
1,2 Km
Eneldrive Stadio Renato Dall'Ara
1,5 Km
Scuole Scuole
Scuola Primaria Drusiani
140 m
Albertazzi
320 m
Scuola Materna Cristo Re
440 m
Scuola Materna Seragnoli
490 m
Scuole
740 m
Farmacia Farmacia
Lloyds Farmacia Battindarno
220 m
Santa Viola
360 m
De Pisis
640 m
Farmacia del Reno
660 m
Santa Lucia
720 m
Ospedali Ospedali
Ospedale Privato Santa Viola
220 m
Croce Rossa Italiana - Comitato di Bologna
620 m
Croce Rossa Italiana corpo militare
730 m
Centrale Operativa 118 - Emilia Est
810 m
Ospedali
910 m
Supermercati Supermercati
Supermercati
70 m
Esselunga
350 m
Conad
530 m
Alì
610 m
Coop Saffi
1,1 Km
Negozi Negozi
Panificio Luca Acri
650 m
Sanny Frutta
690 m
Garulli
710 m
Frapp
720 m
Neri Giancarlo
800 m
Bar Bar
Happy
380 m
Bar
460 m
Jimmy
500 m
Freesby
640 m
Dolce Brivido
690 m
Ristoranti Ristoranti
Izumi Asian Fusion
420 m
Izumi
420 m
Trattoria la Tagliata
480 m
Trattoria Zita
530 m
Ristorante cinese Felicità
550 m
Mostra tutto

Caratteristiche

Rif.:
61127254
Piano:
1 di 2 (Piano su più livelli)
Posti auto:
1
Balconi:
2
Terrazzi:
1
Camere da letto:
3
Mostra tutto
Prezzo Prezzo
€ 410.000
Rata mutuo Rata mutuo
€ 1.943 / mese
Spese annue Spese annue
€ 200
Proponi il tuo prezzoProponi il tuo prezzo

Classe Energetica

F
F
F
F
F
F
F
F
F
EP globale non rinnovabile:
230.00 kW h/m² anno
EP invernale del fabbricato:
EP estiva del fabbricato:
Anno di costruzione:
1980
Riscaldamento:
Autonomo
Tipo impianto:
A radiatori
Tipo alimentazione:
Metano

Ti interessa visionare l'immobile?

Fissa un appuntamento  Fissa un appuntamento

Richiedi informazioni

Clicca su Leggi per aprire l'informativa
* Questi campi sono obbligatori

Calcola il tuo mutuo

Semplice e senza impegno
Anticipo

( % )
Mutuo

( % )

pochi semplici passi

inserisci i tuoi dati
Questionario completato
Grazie per aver richiesto un appuntamento senza impegno con un nostro Consulente del Credito e Assicurativo.

Hai inserito correttamente tutti i dati necessari e a breve riceverai una e-mail con un link da convalidare per inviare i tuoi dati.
Affiliato
Bologna Ponente Srl
Via Emilia Ponente, 88/A 40133 Bologna (BO)

Il nostro staff


  • Alessandro Brighetti
    Affiliato

  • Fabio Finotti
    Collaboratore

  • Marco Giusti
    Collaboratore

  • Alessandro Molinari
    Affiliato
Via Emilia Ponente, 88/A 40133 Bologna (BO)
Zona: Q.re Reno: S.Viola
Mostra su mappa
Orari: dal lunedì al venerdì 9:00/13:00 - 15:00/19:30 sabato 9:00/13:00
Affiliato
Bologna Ponente Srl
Via Emilia Ponente, 88/A 40133 Bologna (BO)

2026 Tecnocasa Franchising S.p.A. - P. IVA 08365160152 - Via Monte Bianco 60/A 20089 Rozzano (MI). Ogni agenzia ha un proprio titolare ed è autonoma. Privacy policy | Policy utilizzo | Cookie policy