Monolocale in vendita

Bologna, Via del Milliario - Santa Viola
€ 139.000
Prezzo aggiornato
1 locale 1 locale
35 Mq 35 Mq
1 bagno 1 bagno

Monolocale in vendita

Bologna, Via del Milliario - Santa Viola

Descrizione annuncio

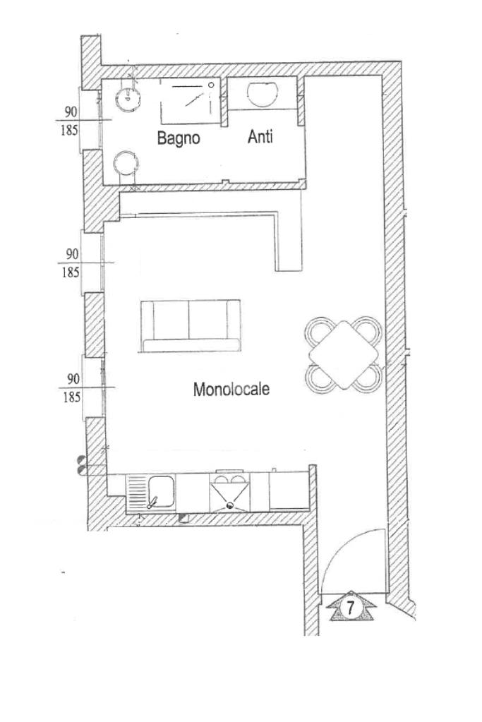
L'agenzia Tecnocasa di Santa Viola propone in Via del Milliario un appartamento monolocale, ideale per chi cerca una soluzione abitativa funzionale e ben collegata.

L'immobile è situato al primo piano di un edificio oggetto di una completa ristrutturane nel 2006. La disposizione interna è studiata per ottimizzare lo spazio, rendendolo perfetto per single o giovani coppie. La zona giorno è luminosa e ben organizzata. Il bagno, anch'esso ristrutturato, è finestrato e dotato di tutti i comfort necessari.

La posizione strategica permette di raggiungere facilmente i principali servizi e i mezzi di trasporto pubblico.

L'immobile è libero pronto per essere abitato o messo a reddito.

Per ulteriori informazioni e dettagli siamo disponibili dalle 09:00 alle 13:00 e dalle 15:00 alle 19:30 presso la nostra sede in Via Emilia n°88/A - Angolo Via Battindarno. Per fissare una visita all'immobile ci contatti allo 051/4984817.

Mostra tutto

Nelle vicinanze

Trasporto pubblico Trasporto pubblico
Casteldebole
Casteldebole
1,9 Km
Lazzaretto
Lazzaretto
1,9 Km
Pontelungo
Pontelungo
120 m
Ponte Romano
Ponte Romano
190 m
stazione di Bologna Borgo Panigale
stazione di Bologna Borgo Panigale
1,1 Km
Ricariche auto elettriche Ricariche auto elettriche
Stazione Bologna Borgo Panigale | EnelX
1,1 Km
Bologna Ospedale Maggiore | EnelX
1,3 Km
Cimitero Monumentale di Bologna | EnelX
1,6 Km
Bologna Casteldebole | EnelX
1,6 Km
BOLOGNA Cimabue | ENELX
1,6 Km
Scuole Scuole
Scuola Materna Seragnoli
470 m
Scuole
500 m
Scuola Media Zanotti
610 m
Scuole Zanotti-De Vigri
630 m
Scuola Elementare De Vigri
660 m
Farmacia Farmacia
Farmacia del Reno
170 m
Lloyds Farmacia Emilia Ponente
560 m
Lloyds Farmacia Battindarno
660 m
De Pisis
740 m
Santa Viola
890 m
Ospedali Ospedali
Ospedale Privato Santa Viola
780 m
Croce Rossa Italiana corpo militare
1,0 Km
Croce Rossa Italiana - Comitato di Bologna
1,2 Km
Centrale Operativa 118 - Emilia Est
1,3 Km
Reparto di Psichiatria "Ottonello"
1,4 Km
Supermercati Supermercati
In's
600 m
Conad
670 m
Supermercati
900 m
Esselunga
920 m
Lidl
1,2 Km
Negozi Negozi
Frapp
110 m
Garulli
120 m
Sanny Frutta
140 m
Raj
660 m
Negozi
1,1 Km
Bar Bar
Bar
120 m
Bon Bon Cafe'
130 m
Freesby
190 m
Centro Sportivo Pontelungo
420 m
Bar
440 m
Ristoranti Ristoranti
Pontelungo
120 m
Ristorante cinese Felicità
300 m
Osteria Tato & Vino
690 m
Conca D'oro
740 m
Chiosco ai Pini
850 m
Mostra tutto

Caratteristiche

Rif.:
61178348
Piano:
1 di 3 (Piano basso)
Arredamento:
Assente
Condizionamento:
Assente
Ascensore:
No
Riscaldamento:
Autonomo
Mostra tutto
Prezzo Prezzo
€ 139.000
Rata mutuo Rata mutuo
€ 659 / mese
Spese annue Spese annue
€ 500
Proponi il tuo prezzoProponi il tuo prezzo

Classe Energetica

E
E
E
E
E
E
E
E
E
EP globale non rinnovabile:
200.99 kW h/m² anno
EP invernale del fabbricato:
EP estiva del fabbricato:
Anno di costruzione:
1951
Riscaldamento:
Autonomo
Tipo impianto:
A radiatori
Tipo alimentazione:
Metano

Prezzo ridotto di €1 (5%%)

Ti interessa visionare l'immobile?

Fissa un appuntamento  Fissa un appuntamento

Richiedi informazioni

Clicca su Leggi per aprire l'informativa
* Questi campi sono obbligatori

Calcola il tuo mutuo

Semplice e senza impegno
Anticipo

( % )
Mutuo

( % )

pochi semplici passi

inserisci i tuoi dati
Questionario completato
Grazie per aver richiesto un appuntamento senza impegno con un nostro Consulente del Credito e Assicurativo.

Hai inserito correttamente tutti i dati necessari e a breve riceverai una e-mail con un link da convalidare per inviare i tuoi dati.
Affiliato
Bologna Ponente Srl
Via Emilia Ponente, 88/A 40133 Bologna (BO)

Il nostro staff


  • Alessandro Brighetti
    Affiliato

  • Fabio Finotti
    Collaboratore

  • Marco Giusti
    Collaboratore

  • Alessandro Molinari
    Affiliato
Via Emilia Ponente, 88/A 40133 Bologna (BO)
Zona: Q.re Reno: S.Viola
Mostra su mappa
Orari: dal lunedì al venerdì 9:00/13:00 - 15:00/19:30 sabato 9:00/13:00
Affiliato
Bologna Ponente Srl
Via Emilia Ponente, 88/A 40133 Bologna (BO)

2026 Tecnocasa Franchising S.p.A. - P. IVA 08365160152 - Via Monte Bianco 60/A 20089 Rozzano (MI). Ogni agenzia ha un proprio titolare ed è autonoma. Privacy policy | Policy utilizzo | Cookie policy