Trilocale in affitto

Bologna, Via Saragozza - Costa Saragozza
€ 1.200 / mese
Prezzo aggiornato
3 locali 3 locali
119 Mq 119 Mq
1 bagno 1 bagno

Trilocale in affitto

Bologna, Via Saragozza - Costa Saragozza

Descrizione annuncio

Nel cuore di Costa Saragozza, a pochi passi dall' Arco del Meloncello, si trova un appartamento in locazione che unisce comfort e praticità.

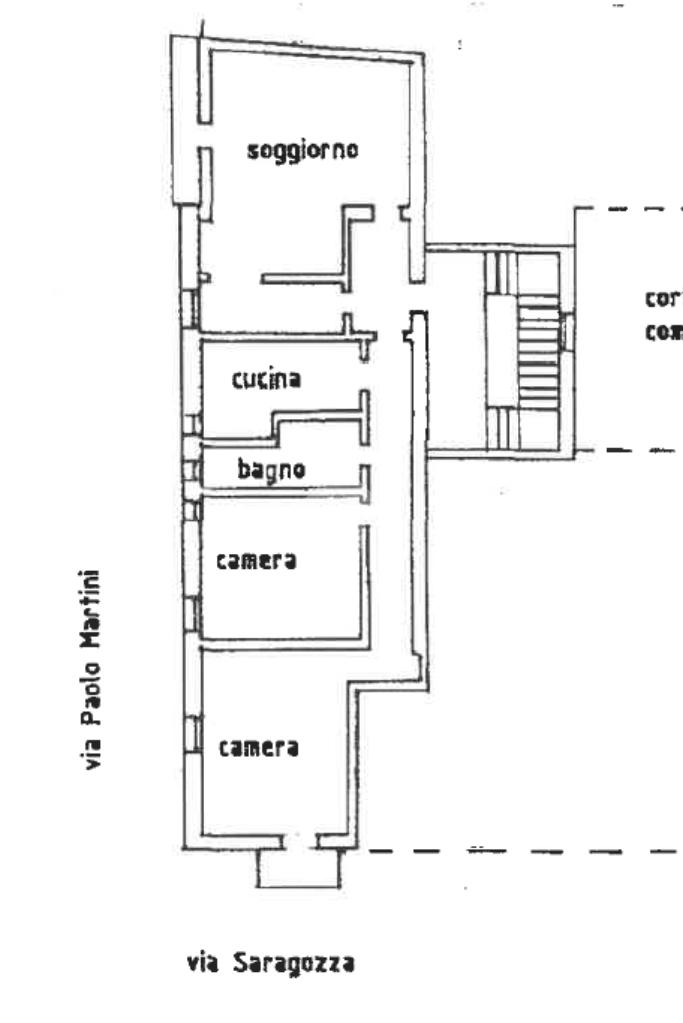
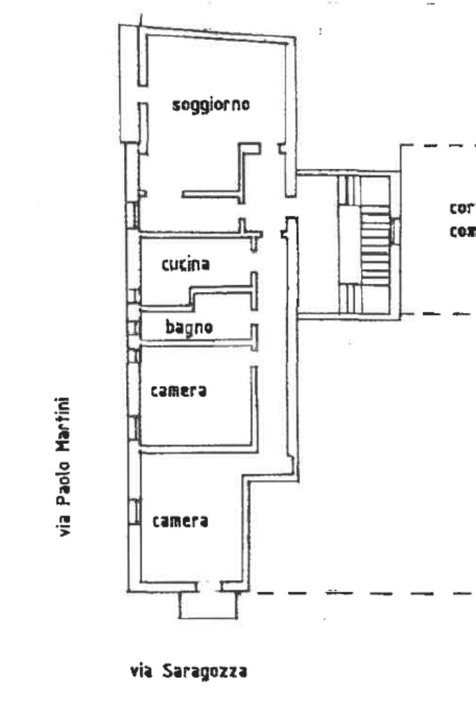
Situato al terzo piano di un edificio con ascensore, questo immobile offre spazi ben distribuiti ed accoglienti.

La sala, ampia e luminosa, si presta perfettamente per momenti di relax e convivialità. La cucina, funzionale e ben organizzata, è ideale per chi ama cucinare. Le due camere da letto matrimoniali garantiscono spazio e privacy. Il bagno e due balconi completano l'offerta di questo appartamento.

Sono stati recentemente ultimati all'interno dell'immobile i lavori di ristrutturazione tra i quali il rifacimento dell'impianto elettrico, l'installazione di una nuova caldaia a condensazione, la nuova pavimentazione delle camere da letto e del disimpegno.

Contratto a canone concordato 3+2

Per ulteriori informazioni e dettagli siamo disponibili dalle 09:00 alle 13:00 e dalle 15:00 alle 19:30 presso la nostra sede in Via Emilia n°88/A - Angolo Via Battindarno. Per fissare una visita all'immobile ci contatti allo 051/4984817.

Le informazioni riportate sul presente annuncio non costituiscono vincolo o elemento contrattuale.

Mostra tutto

Nelle vicinanze

Trasporto pubblico Trasporto pubblico
stazione di Bologna Centrale
stazione di Bologna Centrale
3,0 Km
Bologna AV
Bologna AV
3,0 Km
Meloncello
Meloncello
50 m
Bandiera
Bandiera
140 m
Ricariche auto elettriche Ricariche auto elettriche
Bologna Irma Bandiera | HERA
150 m
Eneldrive Stadio Renato Dall'Ara
250 m
Bologna Andrea Costa | EnelX
610 m
Cimitero Monumentale di Bologna | EnelX
1,1 Km
Universita' di Bologna | EnelX
1,2 Km
Scuole Scuole
Scuole
160 m
Maria Ausiliatrice
530 m
Luigi Bombicci
690 m
Scuola elementare Luigi Bombicci
700 m
Ada Gobetti Marchesini
730 m
Farmacia Farmacia
Mia
160 m
Immacolata
270 m
Comunale
360 m
Bertelli
660 m
Farmacia Stadio
760 m
Ospedali Ospedali
Roncati
1,4 Km
Ospedale Maggiore "Carlo Alberto Pizzardi" Accesso Principale
1,6 Km
CUP - Centro Unico Prenotazione Ospedale Maggiore
1,7 Km
Ospedale Maggiore "Carlo Alberto Pizzardi"
1,7 Km
Croce Rossa Italiana - Comitato di Bologna
1,7 Km
Supermercati Supermercati
Coop
410 m
Carrefour Express
530 m
Despar
1,0 Km
IN'S Mercato
1,2 Km
Carrefour
1,3 Km
Negozi Negozi
minimarket
330 m
Fabian Gioielli
330 m
pane
350 m
Briciole golose
490 m
NaturaSì
560 m
Bar Bar
Bar Stadio
540 m
Bar Celeste
780 m
Oliviero
830 m
Bar Pasticceria Venezia
880 m
Bar Asso
1,0 Km
Ristoranti Ristoranti
Trattoria Meloncello
140 m
Pizzeria Il Meloncello
380 m
San Gennaro
460 m
Miyabi
490 m
Pizza 90
540 m
Mostra tutto

Caratteristiche

Rif.:
61139476
Piano:
3 di 5 con ascensore (Piano alto)
Balconi:
2
Camere da letto:
2
Arredamento:
Assente
Condizionamento:
Autonomo
Mostra tutto
Prezzo Prezzo
€ 1.200 / mese
Spese annue Spese annue
€ 800

Classe Energetica

F
F
F
F
F
F
F
F
F
EP globale non rinnovabile:
250.00 kW h/m² anno
EP globale rinnovabile:
250.00 kW h/m² anno
EP invernale del fabbricato:
EP estiva del fabbricato:
Anno di costruzione:
1960
Riscaldamento:
Autonomo
Tipo impianto:
A radiatori
Tipo alimentazione:
Metano

Prezzo ridotto di €1 (1%%)

Ti interessa visionare l'immobile?

Fissa un appuntamento  Fissa un appuntamento

Richiedi informazioni

* Questi campi sono obbligatori
Affiliato
Bologna Ponente Srl
Via Emilia Ponente, 88/A 40133 Bologna (BO)

Il nostro staff


  • Alessandro Brighetti
    Affiliato

  • Fabio Finotti
    Collaboratore

  • Marco Giusti
    Collaboratore

  • Alessandro Molinari
    Affiliato
Via Emilia Ponente, 88/A 40133 Bologna (BO)
Zona: Q.re Reno: S.Viola
Mostra su mappa
Orari: dal lunedì al venerdì 9:00/13:00 - 15:00/20:00 sabato 9:00/13:00
Affiliato
Bologna Ponente Srl
Via Emilia Ponente, 88/A 40133 Bologna (BO)

2025 Tecnocasa Franchising S.p.A. - P. IVA 08365160152 - Via Monte Bianco 60/A 20089 Rozzano (MI). Ogni agenzia ha un proprio titolare ed è autonoma. Privacy policy | Policy utilizzo | Cookie policy