Bilocale in affitto

Bologna, Via del Giglio - Santa Viola
€ 800 / mese
Prezzo aggiornato
2 locali 2 locali
46 Mq 46 Mq
1 bagno 1 bagno

Bilocale in affitto

Bologna, Via del Giglio - Santa Viola

Descrizione annuncio

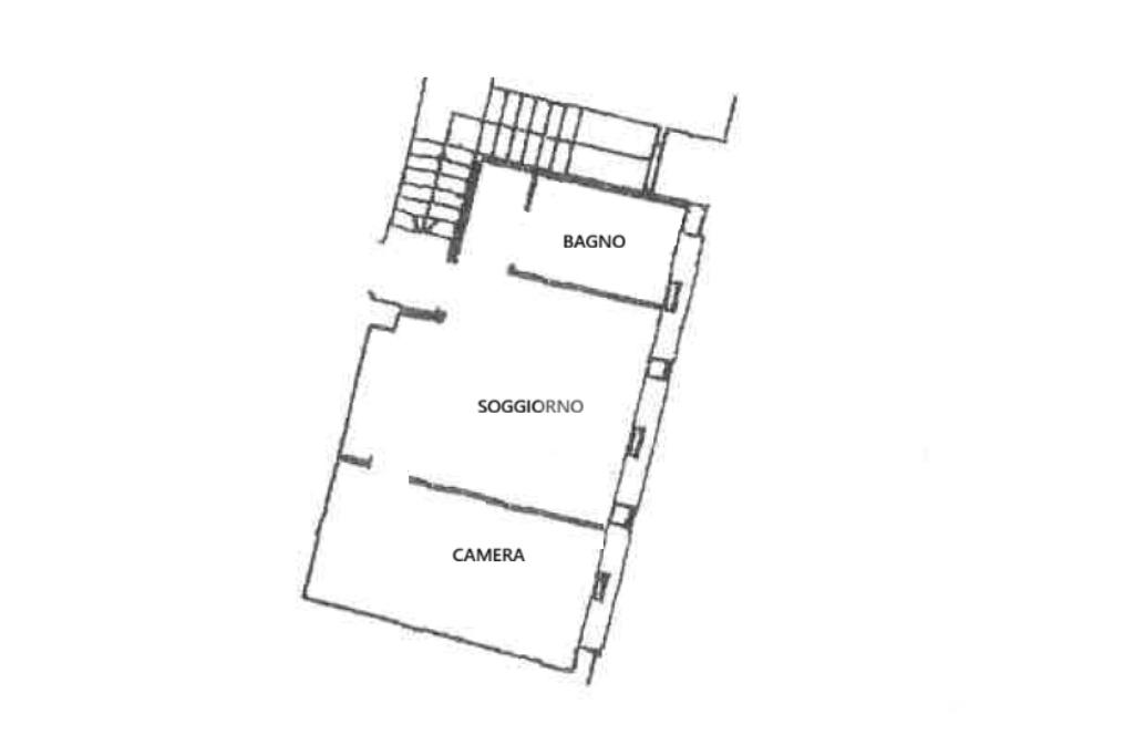
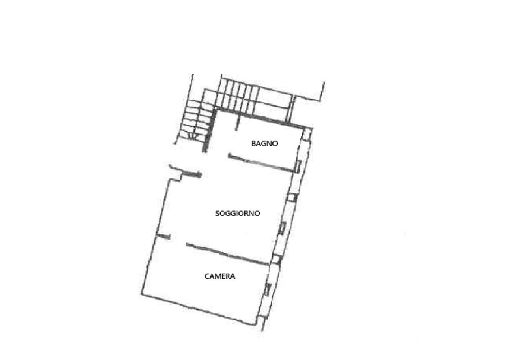
Nel cuore di Santa Viola, a Bologna, si propone in locazione un appartamento signorile di 46 mq, situato al primo piano di un edificio costruito nel 1995.

L'immobile si distingue per le sue caratteristiche uniche, tra cui le travi a vista in legno che conferiscono un tocco di calore e accoglienza agli ambienti. L'appartamento è composto da soggiorno con angolo cottura, una confortevole camera da letto e un bagno. Completamente arredato, l'appartamento offre tutto il necessario per un soggiorno comodo e funzionale.

A disposizione degli inquilini vi è anche una cantina, utile per riporre oggetti e attrezzature.

Questa soluzione abitativa rappresenta un'opportunità per chi cerca un ambiente curato e ben collegato al centro di Bologna.

Volendo è possibile locare anche un'autorimessa a 100 Euro/mese.

Per ulteriori informazioni e dettagli siamo disponibili dalle 09:00 alle 13:00 e dalle 15:00 alle 19:30 presso la nostra sede in Via Emilia n°88/A - Angolo Via Battindarno. Per fissare una visita all'immobile ci contatti allo 051/4984817.

Mostra tutto

Nelle vicinanze

Trasporto pubblico Trasporto pubblico
Lazzaretto
Lazzaretto
1,7 Km
Casteldebole
Casteldebole
2,1 Km
Ponte Romano
Ponte Romano
130 m
Giorgione
Giorgione
140 m
stazione di Bologna Borgo Panigale
stazione di Bologna Borgo Panigale
1,3 Km
Ricariche auto elettriche Ricariche auto elettriche
Bologna Ospedale Maggiore | EnelX
1,1 Km
Stazione Bologna Borgo Panigale | EnelX
1,3 Km
BOLOGNA Cimabue | ENELX
1,4 Km
Cimitero Monumentale di Bologna | EnelX
1,4 Km
Bologna Casteldebole | EnelX
1,8 Km
Scuole Scuole
Scuole
260 m
Scuola Media Zanotti
390 m
Scuole Zanotti-De Vigri
420 m
Scuola Elementare De Vigri
440 m
Scuole Materna Pedrielli
450 m
Farmacia Farmacia
Farmacia del Reno
220 m
Lloyds Farmacia Battindarno
520 m
Santa Viola
700 m
Lloyds Farmacia Emilia Ponente
790 m
De Pisis
820 m
Ospedali Ospedali
Ospedale Privato Santa Viola
610 m
Croce Rossa Italiana corpo militare
780 m
Croce Rossa Italiana - Comitato di Bologna
990 m
Centrale Operativa 118 - Emilia Est
1,1 Km
Reparto di Psichiatria "Ottonello"
1,2 Km
Supermercati Supermercati
Conad
730 m
Esselunga
730 m
Supermercati
780 m
In's
830 m
Alì
1,2 Km
Negozi Negozi
Sanny Frutta
200 m
Garulli
220 m
Frapp
230 m
Raj
890 m
Negozi
1,1 Km
Bar Bar
Freesby
200 m
Bon Bon Cafe'
210 m
Centro Sportivo Pontelungo
280 m
Bar
280 m
Bar
300 m
Ristoranti Ristoranti
Ristorante cinese Felicità
310 m
Pontelungo
340 m
Izumi
650 m
Izumi Asian Fusion
660 m
Trattoria la Tagliata
730 m
Mostra tutto

Caratteristiche

Rif.:
61130129
Piano:
1 di 2 (ultimo Piano)
Camere da letto:
1
Arredamento:
Completo
Condizionamento:
Autonomo
Ascensore:
No
Mostra tutto
Prezzo Prezzo
€ 800 / mese
Spese annue Spese annue
€ 250

Classe Energetica

E
E
E
E
E
E
E
E
E
EP globale non rinnovabile:
150.00 kW h/m² anno
EP globale rinnovabile:
150.00 kW h/m² anno
EP invernale del fabbricato:
EP estiva del fabbricato:
Anno di costruzione:
1995
Riscaldamento:
Autonomo
Tipo impianto:
A radiatori
Tipo alimentazione:
Metano

Prezzo ridotto di €1 (6%%)

Ti interessa visionare l'immobile?

Fissa un appuntamento  Fissa un appuntamento

Richiedi informazioni

* Questi campi sono obbligatori
Affiliato
Bologna Ponente Srl
Via Emilia Ponente, 88/A 40133 Bologna (BO)

Il nostro staff


  • Alessandro Brighetti
    Affiliato

  • Fabio Finotti
    Collaboratore

  • Marco Giusti
    Collaboratore

  • Alessandro Molinari
    Affiliato
Via Emilia Ponente, 88/A 40133 Bologna (BO)
Zona: Q.re Reno: S.Viola
Mostra su mappa
Orari: dal lunedì al venerdì 9:00/13:00 - 15:00/20:00 sabato 9:00/13:00
Affiliato
Bologna Ponente Srl
Via Emilia Ponente, 88/A 40133 Bologna (BO)

2025 Tecnocasa Franchising S.p.A. - P. IVA 08365160152 - Via Monte Bianco 60/A 20089 Rozzano (MI). Ogni agenzia ha un proprio titolare ed è autonoma. Privacy policy | Policy utilizzo | Cookie policy